2 Bed Conversion Flat For Sale

Trowbridge, Wiltshire

£265,000

Bedrooms

2

Bathrooms

1

Receptions

1

Save property

Save property


  • FIRST FLOOR APARTMENT WITH PRIVATE ENTRANCE
  • TWO DOUBLE BEDROOMS
  • SUPERB OPEN PLAN LIVING SPACE
  • HIGHLY ANTICIPATED TOWN CENTRE DEVELOPMENT
  • ALLOCATED PARKING WITH GATED CAR PARK
  • HIGH SPECIFICATION
  • GENEROUS COMMUNAL GROUNDS
  • 10 YEAR STRUCTURAL WARRANTY
  • A UNIQUE DEVELOPMENT LIKE NO OTHER
  • EPC: E

With a private entrance and spectacular open plan living space, this south facing apartment enjoys a supreme amount of natural light. Found within an award winning development, the property comes with gated parking and access to the most amazing communal hall as well as attractive communal grounds.

One of the most anticipated developments Trowbridge has seen for many years, The Tabernacle is an impressive and sympathetic conversion of a beautiful Grade II Listed church, right in the heart of the town. Each property has been thoughtfully planned and finished to a superb standard. Original features of the building have been kept and enhanced wherever possible making this gated development truly unique. The breathtaking church has been transformed into a wonderful communal space for residents to enjoy along with extensive communal grounds. Such is the level of thought and care that has gone into this conversion that the development won the Trowbridge Enhancement Award for 2025.

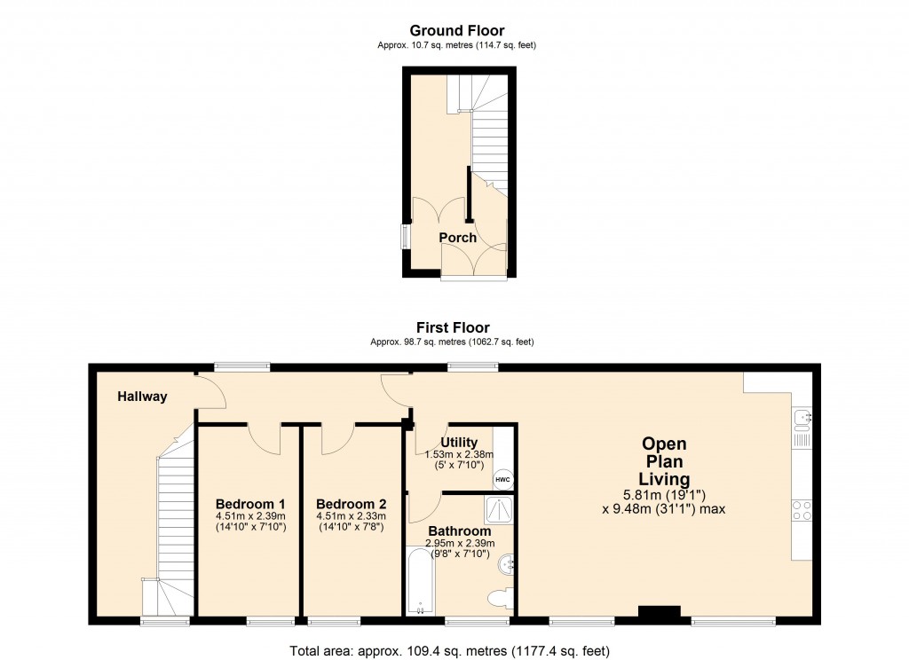
The handsome front door leads into a private entrance hall. Stone steps ascend to the first floor where you find a beautiful window flooding the space with natural light and a door into the apartment. The impressive open plan living space is a fantastic size and features more gorgeous south facing windows as well as a well-appointed kitchen with attractive units and work surfaces over. Both bedrooms are similarly sized doubles whilst the spacious bathroom enjoys a four piece suite. Completing the accommodation is a useful utility room providing extra convenience.

The property benefits from allocated parking within the gated residents car park as well as access to generous communal grounds and a gorgeous communal space within the original church.

The property is found within the Trowbridge Conservation Area and is leasehold with the lease running to 3022. There is no ground rent payable but a service charge which is currently £2,492 per year to include buildings insurance, gardening and maintenance of communal areas, window cleaning and servicing of the electric gates.

Trowbridge is the county town of Wiltshire found close to the western border with Somerset. On the fringe of the town centre, you find Trowbridge Town Park, a large open space with a host of activities, tree lined paths and a riverside walk to Biss Meadows Country Park. St Stephens Place provides several dining options along with a multi-screen cinema complex. There are a wide variety of historic buildings around the town along with a selection of beautiful walks nearby, including the Kennet and Avon Canal and Southwick Country Park. The town has superb transport links with Trowbridge station providing access to London as well as a short ride to the world heritage city of Bath. The A350 passes the fringe of the town, leading to the M4 via Chippenham and the A303 and A36 to the south.

Floorplans For Trowbridge, Wiltshire
EPC For Trowbridge, Wiltshire

Calculate Your Stamp Duty

£

Results

Stamp Duty To Pay:

Effective Rate:

Tax Band % Taxable Sum Tax

Book a Viewing

Simply fill out the form below and one of the team will be in touch as soon as possible.

* indicates a required field within the form.

This site is protected by reCAPTCHA and the Google Privacy Policy and Terms of Service apply.

How much is your property worth?

If you want to talk through your selling, buying or renting options, then please get in touch.

Book a Valuation

Selling your
property?

Letting your
property?

Looking for
a property?

Tenant's
information

Land & New Homes Network logo RightMove logo ARLA logo NAEA logo DPS logo
Guild logo Property Ombudsman logo Trading Standards logo iamsold logo OnTheMarket logo