Sorry, there is no video tour available for this property.

Land For Sale

Trowbridge, Wiltshire

£220,000

Bedrooms

0

Bathrooms

0

Receptions

0

Save property

Save property


  • EXCITING DEVELOPMENT OPPORTUNITY
  • FULL PLANNING PERMISSION GRANTED
  • 7 ONE BEDROOM PROPERTIES
  • EACH WITH SEPARATE ENTRANCES
  • OFF STREET PARKING, CYCLE STORAGE & OUT DOOR SPACE
  • CLOSE TO TOWN CENTRE & RAILWAY STATION
  • GOOD RENTAL YEILD AND GDV
  • PLANNING REFERENCE PL/2025/07290

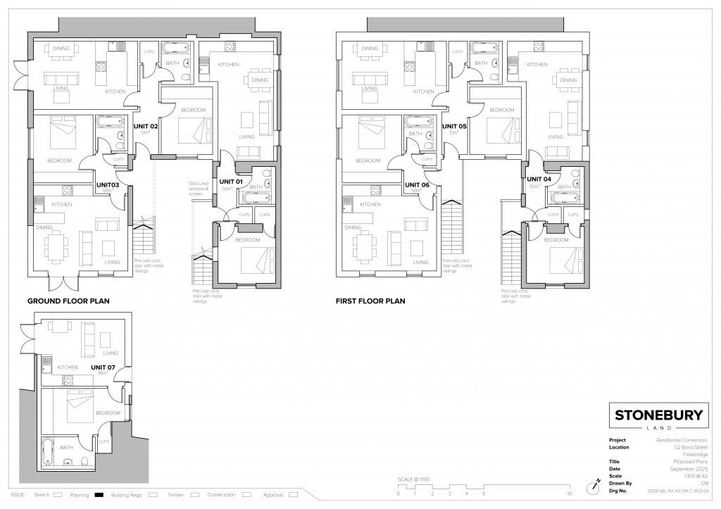
With full planning permission for 7 one bedroom properties, this exciting development opportunity includes parking and outdoor space. A short distance from both the town centre and railway station, the scheme would work well as a build to rent or to sell as individual apartments (subject to creation of leases).

This scheme comprises part conversion and part new build to create 7 dwellings. Each would have their own private entrance, open plan living space and double bedroom. In addition, there is outside space which would allow for allocated parking and garden areas.

The full planning documents can be accessed via the Wiltshire Planning Portal with the reference PL/2025/07290.

Bond Street is conveniently located a short distance from the town centre and railway station within the Newtown Conservation Area. The development is subject to a community infrastructure levy and a buyer must satisfy themselves with regards to how much this would be.

Trowbridge is the county town of Wiltshire found close to the western border with Somerset. On the fringe of the town centre, you find Trowbridge Town Park, a large open space with a host of activities, tree lined paths and a riverside walk to Biss Meadows Country Park. St Stephens Place provides several dining options along with a multi-screen cinema complex. There are a wide variety of historic buildings around the town along with a selection of beautiful walks nearby, including the Kennet and Avon Canal and Southwick Country Park. The town has superb transport links with Trowbridge station providing access to London as well as a short ride to the world heritage city of Bath. The A350 passes the fringe of the town, leading to the M4 via Chippenham and the A303 and A36 to the south.

Floorplans For Trowbridge, Wiltshire

Calculate Your Stamp Duty

£

Results

Stamp Duty To Pay:

Effective Rate:

Tax Band % Taxable Sum Tax

Book a Viewing

Simply fill out the form below and one of the team will be in touch as soon as possible.

* indicates a required field within the form.

This site is protected by reCAPTCHA and the Google Privacy Policy and Terms of Service apply.

How much is your property worth?

If you want to talk through your selling, buying or renting options, then please get in touch.

Book a Valuation

Selling your
property?

Letting your
property?

Looking for
a property?

Tenant's
information

Land & New Homes Network logo RightMove logo ARLA logo NAEA logo DPS logo
Guild logo Property Ombudsman logo Trading Standards logo iamsold logo OnTheMarket logo