Sorry, there is no video tour available for this property.

4 Bed Semi Detached House For Sale

Winsley, Wiltshire

£475,000

Bedrooms

4

Bathrooms

2

Receptions

1

Save property

Save property


  • FOUR BEDROOMS
  • GARAGE
  • EXCELLENT CONDITION THROUGHOUT
  • NO ONWARD CHAIN
  • TUCKED AWAY QUIET L.OCATION
  • PLENTY OF OFF STREET PARKING
  • LARGE FRONT GARDEN WITH MATURE SHRUBS AND PLANTS
  • PRIVATE REAR GARDEN MAINLY LAID TO LAWN

Nestled discreetly at the end of a peaceful cul-de-sac on Tyning Road, this four-bedroom semi-detached home in the highly sought-after village of Winsley, near Bradford on Avon, offers a blend of generous accommodation, modern convenience, and tranquil surroundings.

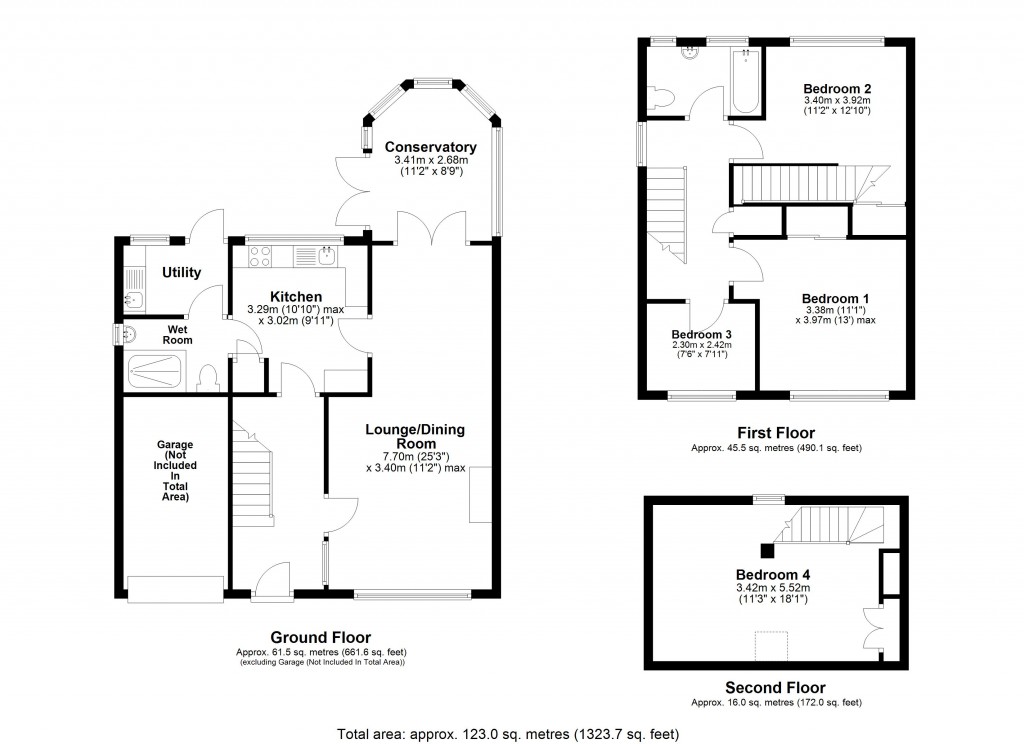
The property has been thoughtfully laid out most notably with a superb loft room conversion that now provides a spacious and beautifully proportioned double bedroom, ideal as work from home space or childrens bedroom. The first floor hosts a further two well-sized double bedrooms with built in storage alongside a comfortable single room, all served by a family bathroom.

On the ground floor, the home opens into a wonderfully sociable open-plan lounge and dining area, perfectly suited to both relaxed family living and entertaining. A separate kitchen enjoys a delightful outlook over the rear garden, filling the space with natural light and offering a pleasant connection to the outdoors. Complementing the ground floor accommodation is a stylishly installed wet room and a useful utility room, enhancing the home’s functionality.

To the rear, a charming conservatory provides an additional reception space, with direct access onto the garden. The garden itself is predominantly laid to lawn, offering a private outdoor haven.

The property further benefits from a garage, as well as an exceptionally large front garden with a substantial driveway providing ample off-road parking.

Offered to the market with no onward chain, this superb home represents an excellent opportunity to acquire a well-positioned and versatile property in a desirable village setting.

The property is situated in the picturesque village of Winsley which is located approximately 2 miles from Bradford on Avon, and only 6 miles from the Georgian City of Bath. Winsley itself offers many amenities including a post office/grocery store, doctors surgery, excellent pub, popular primary school, and very easy access to St Laurence secondary school in Bradford on Avon. There are numerous relaxing countryside walks nearby, and on the social side the village is also served by a cricket, rugby and bowls club, ideal for those who want to take an active role in the bustling community.

Floorplans For Winsley, Wiltshire

Calculate Your Stamp Duty

£

Results

Stamp Duty To Pay:

Effective Rate:

Tax Band % Taxable Sum Tax

Book a Viewing

Simply fill out the form below and one of the team will be in touch as soon as possible.

* indicates a required field within the form.

This site is protected by reCAPTCHA and the Google Privacy Policy and Terms of Service apply.

How much is your property worth?

If you want to talk through your selling, buying or renting options, then please get in touch.

Book a Valuation

Selling your
property?

Letting your
property?

Looking for
a property?

Tenant's
information

Land & New Homes Network logo RightMove logo ARLA logo NAEA logo DPS logo
Guild logo Property Ombudsman logo Trading Standards logo iamsold logo OnTheMarket logo