Sorry, there is no video tour available for this property.

3 Bed Semi Detached House For Sale

Downs Close, Bradford On Avon, Wiltshire

£375,000

Bedrooms

3

Bathrooms

1

Receptions

2

Save property

Save property


  • THREE BEDROOM SEMI-DETACHED HOME
  • AMPLE OFF STREET PARKING FOR AT LEAST THREE CARS
  • EXCELLENTLY POSITIONED FOR ST LAURENCE AND CHRISTCHURCH SCHOOL
  • BEAUTIFULLY RENOVATED AND PRESENTED THROUGHOUT
  • POTENTIAL FOR EXPANSION SUBJECT TO PLANNING PERMISSIONS
  • QUIET CUL-DE-SAC LOCATION

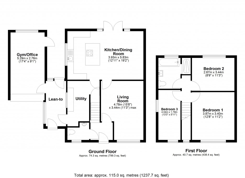
We are pleased to offer this beautifully modernised 3 bedroom semi-detached family home in a quiet Cul-De-Sac location on Downs Close. The property offers ample off street parking for at least two large cars, with garage that is currently used for Gym and Home Office.

As you enter the inviting home, you are welcomed with good size hallway. There is a downstairs W/C, as well as access into the lounge area which has been cleverly set up with a study area/play zone. Through to the Kitchen dining room which really is the heart of the home! Compromising of a modern kitchen with a lovely central island doubling up as a breakfast bar. From here you have access outside via double doors onto the large, private garden. Internally there is also access into a large utility room, lean to area which has access from the front of the house through to the garden, as well as the garage, which has been turned into a Gym/Office.

Upstairs there are three bedrooms, two of which are good size doubles, as well as a modern bathroom with large walk in shower and a bath. Perfect for that growing family.

The property is situated on the Bath side of Bradford on Avon, both in the catchment area and within walking distance of St Laurence and Christchurch Schools. It offers access to the town centre with its independent shops, public houses, library and swimming pool. The railway station also provides direct services to Bath, Bristol, Salisbury and London Waterloo.

Floorplans For Downs Close, Bradford on Avon, Wiltshire

Calculate Your Stamp Duty

£

Results

Stamp Duty To Pay:

Effective Rate:

Tax Band % Taxable Sum Tax

Book a Viewing

Simply fill out the form below and one of the team will be in touch as soon as possible.

* indicates a required field within the form.

This site is protected by reCAPTCHA and the Google Privacy Policy and Terms of Service apply.

How much is your property worth?

If you want to talk through your selling, buying or renting options, then please get in touch.

Book a Valuation

Selling your
property?

Letting your
property?

Looking for
a property?

Tenant's
information

Land & New Homes Network logo RightMove logo ARLA logo NAEA logo DPS logo
Guild logo Property Ombudsman logo Trading Standards logo iamsold logo OnTheMarket logo