Sorry, there is no video tour available for this property.

2 Bed Terraced House For Sale

The Wharf, Box

Guide Price £375,000

Bedrooms

2

Bathrooms

1

Receptions

1

Save property

Save property


  • Beautifully Presented Mews House Dating Back To The 19th Century
  • Contemporary High Specification Finish Throughout
  • Garage & Allocated Parking
  • Studio/Workshop - Ideal Work From Home Space
  • Open Plan Living Arrangement
  • Conveniently Located For Access To Bath, Chippenham Station, BOA Station & The M4

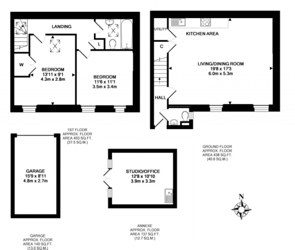
A polished Mews House dating back to the 19th century, subsequently offering a charming stone facade, and a contemporary open plan living arrangement, blending the old and the new seamlessly. The property comprises an entrance hall which provides access to the cloakroom, first floor landing and the main open plan living space. The open plan set up offers a modern kitchen with splashback tiling, built in appliances and a mixture of base level and eye level cabinetry - a generous entertaining space measuring 19'8 x 17'3. The first floor accommodation offers two generous bedrooms with exceptional views and the family bathroom.

Externally the property benefits from a courtyard garden to the front which our vendors regularly enjoy the evening sunshine from. Additionally, the property is supported by a garage, allocated parking and a garden studio which would make a fantastic work home space / annexe subject to the necessary permissions.

The property is located in the heart of this sought-after village. It is well situated for access to Bath & Corsham with village amenities including an excellent primary school, village hall with library, Budgens, family butcher, church, pub, post office/store, curry house, doctor’s surgery & the excellent ”Rec” – an impressive open space resource with cricket, football, bowling club, tennis courts & playground. Corsham is located close by and caters for most day-to-day needs with a range of national and bespoke shops, coffee houses, boutiques, restaurants, and a variety of public houses. There are very good Primary and Secondary schools and the new Corsham Leisure Centre.

Box has excellent communication links to the beautiful city of Bath, just 5 miles away as well as London, Swindon and Bristol via the M4 motorway junctions 17 & 18, with high
speed rail service to London (Paddington - approx 90 mins from Bath) and
Chippenham. There is also a regular bus service which stops outside of the
property providing easy access to Bath and Chippenham.

Floorplans For The Wharf, Box
EPC For The Wharf, Box

Calculate Your Stamp Duty

£

Results

Stamp Duty To Pay:

Effective Rate:

Tax Band % Taxable Sum Tax

Book a Viewing

Simply fill out the form below and one of the team will be in touch as soon as possible.

* indicates a required field within the form.

This site is protected by reCAPTCHA and the Google Privacy Policy and Terms of Service apply.

How much is your property worth?

If you want to talk through your selling, buying or renting options, then please get in touch.

Book a Valuation

Selling your
property?

Letting your
property?

Looking for
a property?

Tenant's
information

Land & New Homes Network logo RightMove logo ARLA logo NAEA logo DPS logo
Guild logo Property Ombudsman logo Trading Standards logo iamsold logo OnTheMarket logo