Sorry, there is no video tour available for this property.

4 Bed Semi Detached House For Sale

Midford, Bath

Guide Price £800,000

Bedrooms

4

Bathrooms

1

Receptions

2

Save property

Save property


  • *** VIEWINGS COMMENCE SAT 11th APRIL CALL FOR AVAILABILITY***
  • AN ELEGANT SEMI DETACHED PERIOD HOME HIDDEN AWAY IN THIS GORGEOUS SECRET LOCATION ON THE OUTSKIRTS OF BATH
  • STUNNING PANORAMIC COUNTRYSIDE VIEWS
  • OCCUPYING A LARGE MATURE PLOT
  • DOUBLE GARAGE AND AN ADDITIONAL SINGLE GARAGE WITH MASSES OF PARKING
  • VERSATILE LAYOUT WITH THREE/FOUR BEDROOMS
  • IMPRESSIVE LIVING ROOM WITH ATTRACTIVE FEATURE BAY WINDOW, FLOODING THE ROOM WITH NATURAL LIGHT
  • GOOD SIZE UTILITY/CONSERVATORY WITH A GROUND FLOOR CLOAKROOM
  • GOOD SIZE KITCHEN/DINER, IDEAL FOR ENTERTAINING
  • SOME UPDATING REQUIRED

An elegant semi-detached period home which occupies a stunning large mature plot, enjoying beautiful panoramic views, situated in this idyllic secret location, on the outskirts of Bath.

Rare to the market, this is a superb opportunity for a buyer looking for peace and tranquillity, whilst remaining in striking distance of Bath, bursting with potential and a chance to create their forever home.

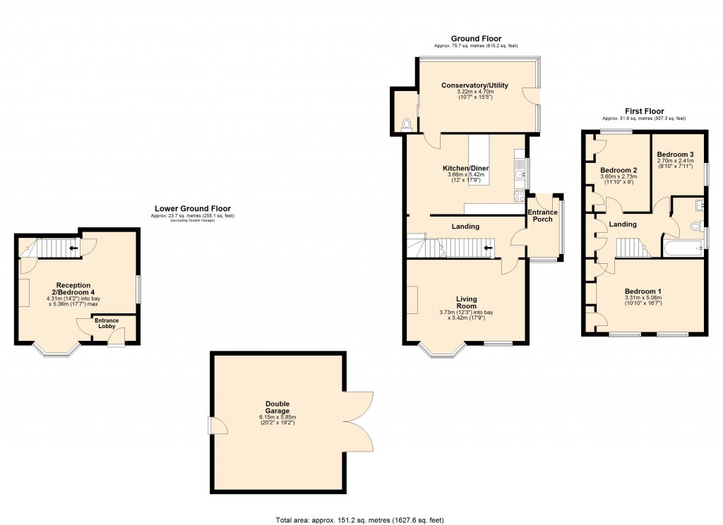
The property is elevated, allowing the lucky buyer to take full advantage of the view, and once inside you will discover; entrance porch, impressive living room with feature bay window, flooding the room with natural light. There is a good size kitchen/diner, perfect for entertaining family and friends. Excellent conservatory/utility with a separate W.C, the engine room of this fine family home. On the lower ground floor, there is a versatile 2nd reception/bedroom four with its own access, perfect for a teenager wanting privacy, a great spot to work from home, or opportunity to generate additional income. On the first floor, there are three bedrooms, a striking principal bedroom which overlooks the valley and the family bathroom. Externally, there are generous mature gardens with a delightful pond teeming with life, masses of off street parking, a double garage, single garage and car port.

A generous slice of this exquisite location, not to be missed.

Nestled in the picturesque village of Midford, just a few miles south of the historic city of Bath, this property enjoys an idyllic countryside setting with the perfect balance of rural charm and city convenience.

Midford is renowned for its rolling hills, scenic walking routes, and tranquil atmosphere, making it a highly sought-after location for those looking to escape the bustle while remaining well connected. The surrounding area is rich in natural beauty, with easy access to the Midford Brook valley and nearby woodland trails.

Despite its peaceful setting, the vibrant centre of Bath—famous for its Georgian architecture, Roman heritage, boutique shopping, and excellent dining—is just a short drive away. Commuters benefit from good transport links to Bristol and beyond, while local amenities and traditional country pubs are within easy reach.

AGENTS NOTE: There is a right of access across the driveway to the front for the neighbouring properties. The property has oil central heating and the drainage is provided by a shared sewage treatment plant, with maintenance costs split between the houses using the system. The chimney has been removed from the property.

Floorplans For Midford, Bath
EPC For Midford, Bath

Calculate Your Stamp Duty

£

Results

Stamp Duty To Pay:

Effective Rate:

Tax Band % Taxable Sum Tax

Book a Viewing

Simply fill out the form below and one of the team will be in touch as soon as possible.

* indicates a required field within the form.

This site is protected by reCAPTCHA and the Google Privacy Policy and Terms of Service apply.

How much is your property worth?

If you want to talk through your selling, buying or renting options, then please get in touch.

Book a Valuation

Selling your
property?

Letting your
property?

Looking for
a property?

Tenant's
information

Land & New Homes Network logo RightMove logo ARLA logo NAEA logo DPS logo
Guild logo Property Ombudsman logo Trading Standards logo iamsold logo OnTheMarket logo