Sorry, there is no video tour available for this property.

5 Bed Detached House For Sale

Hilperton, Trowbridge, Wiltshire

Guide Price £970,000

Bedrooms

5

Bathrooms

6

Receptions

10

Save property

Save property


  • SUPERB DETACHED FAMILY HOME
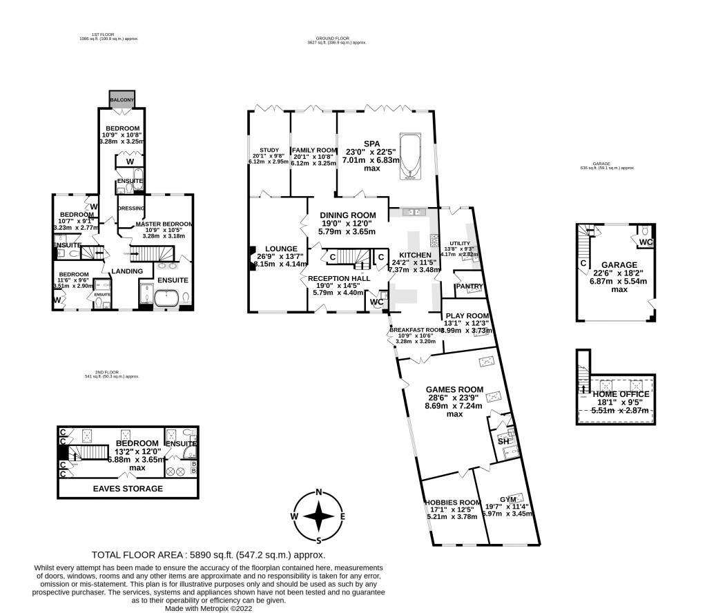
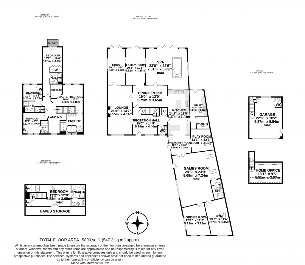
  • MOUTHWATERING LEVEL OF ACCOMMODATION - OVER 5,000 SQFT
  • LUXURIOUS, UNIQUE AND PRESTIGIOUS
  • FIVE ENSUITE DOUBLE BEDROOMS
  • STUNNING GAMES ROOM AND HOME GYM
  • SECURE GATED PARKING AND DOUBLE GARAGE
  • POTENTIAL FOR A FAMILY LOOKING TO COMBINE AND CO EXIST
  • BEAUTIFUL ORANGERY WITH HEATED SWIM SPA
  • HIGH SPECIFICATION KITCHEN
  • STUDY AND DETACHED OFFICE SPACE, PERFECT FOR WORKING FROM HOME

A striking and unique detached home situated in a highly sought after village with good access to Bath and the M4. Finished to a stunning specification the property boasts a mouth watering level of accommodation, exceeding 5,000 sqft, combined with an attractive garden, gated driveway and double garage.

Arriving at the property you find electric gates providing a superb degree of privacy. These open to reveal the properties stunning façade and a vast block paved parking area capable of accommodating a fleet of vehicles. Stepping inside, you are welcomed into the generous reception hall with a handsome oak staircase and matching oak flooring which continues through much of the ground floor. From here you have doors to the spacious living room, large dining room and beautiful kitchen.

Finished with Brazilian marble work tops, the kitchen enjoys underfloor heating and a variety of fitted units. This opens to both the dining room and breakfast room whilst a door leads to the utility room which further benefits from a handy pantry. An enormous games room leads to the hobbies room, gym and downstairs shower room which combined could easily be adapted to create a self-contained annexe. Completing the ground floor, you have a generous study, large family room and a spectacular orangery complete with heated indoor pool and bi-fold doors to the garden.

Upstairs you find a spacious landing area where one could create an additional bedroom if required although the existing five bedrooms provide a good degree of space. Each bedroom benefits from ensuite facilities with the main bedroom enjoying a stunning five-piece suite including a giant bath. A dressing room compliments the master suite whilst bedroom two enjoys a balcony overlooking the garden.

The extensive garage features its own WC facilities as well as a large room above to provide further accommodation. The rear garden is mostly laid to lawn with a selection of attractive trees along with a fantastic cabin creating the perfect barbecue spot – regardless of the weather!

Hilperton is a lovely village on the fringe of Trowbridge, the county town of Wiltshire. The village features a primary school, public house and popular garden centre. The areas scenic countryside boasts a selection of beautiful walks nearby, including the Kennet and Avon Canal whilst Southwick Country Park and Biss Meadows Country Park are not far. Heading into town you have a wide variety of facilities including the multi-screen cinema complex at St Stephens Place which is surrounded by a number of dining options. The village has superb transport links with the A361 passing outside the village and the A350 nearby which leads to the M4 via Chippenham and the A303 and A36 to the south. Trowbridge station provides access to London as well as a short ride to the world heritage city of Bath.

Floorplans For Hilperton, Trowbridge, Wiltshire
EPC For Hilperton, Trowbridge, Wiltshire

Calculate Your Stamp Duty

£

Results

Stamp Duty To Pay:

Effective Rate:

Tax Band % Taxable Sum Tax

Book a Viewing

Simply fill out the form below and one of the team will be in touch as soon as possible.

* indicates a required field within the form.

This site is protected by reCAPTCHA and the Google Privacy Policy and Terms of Service apply.

How much is your property worth?

If you want to talk through your selling, buying or renting options, then please get in touch.

Book a Valuation

Selling your
property?

Letting your
property?

Looking for
a property?

Tenant's
information

Land & New Homes Network logo RightMove logo ARLA logo NAEA logo DPS logo
Guild logo Property Ombudsman logo Trading Standards logo iamsold logo OnTheMarket logo