4 Bed Semi Detached House For Sale

Warminster

Offers Over £450,000

Bedrooms

4

Bathrooms

3

Receptions

3

Save property

Save property


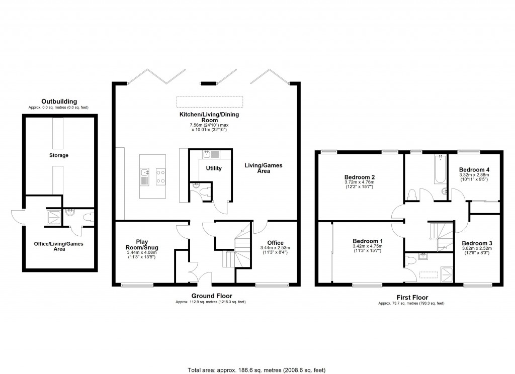
  • A HIGH SPECIFICATION FOUR BEDROOM HOME
  • SPANNING A HUGE 2000 SQ FT (186 SQ MTRS)
  • OUTHOUSE WITH STORAGE, CLOAKROOM AND SHOWER
  • FOUR LARGE DOUBLE BEDROOMS WITH PLENTY OF STORAGE
  • VERSATILE DOWNSTAIRS SPACE WITH AN OFFICE/PLAYROOM A SNUG AND THE HUB OF THE HOME A HUGE KITCHEN/DINING/LIVING AREA
  • DRIVEWAY PARKING FOR MULTIPLE CARS

A stunning high specification four-bedroom home that has been completely renovated and rebuilt. A large semi-detached family home situated in this fabulous location, close to beautiful open countryside on the edge of Warminster.

An ideal location for commuters looking for easy access to the A36 or A350 and close to nearby schools. Rebuilt and renovated by a trusted well renowned local builder, the property has been finished to a very high specification.

On approaching the property, you will instantly be struck by its size and appearance. There is parking for multiple cars on the driveway to the front. You are welcomed by an entrance hall with multiple cloak cupboards with automatic lights and perfect space for shoes and coats. To the front of the property is a versatile living room which could be used as a snug or playroom. As you make your way into the kitchen you are instantly struck by the size, a light and airy feel due to the two sets of bifold doors that run along the back of the property and a skylight allowing natural light to flood the room. The ultra-modern kitchen with its dark cabinetry compliments the light feel and this really is the hub of the home with plenty of different dining and living areas to entertain guests and socialise. The kitchen boasts high spcification in built appliances, a boiling water tap, granite work surfaces and underfloor heating throughout the ground floor. The bifold doors located on the back of thr property mean that during warmer days the whole back of the property can be opened up connected the garden with the home. There is a further front room located off this area which is currently being used as an office, and a useful utility room and downstairs cloakroom complete a truly unique living space.

Upstairs the property continues to impress with four double bedrooms including a large principal suite with shower ensuite which includes a skylight, and a spacious modern family bathroom. The bathroom includes a laundry shute direct to the utility room. The second- and third-bedroom boast views over the garden and built in wardrobes are found in all rooms.

Externally the property includes a low maintenance garden with artificial turf ideal for families and pet owners. A large paved seating area with external electrical points suitable for a TV and garden speakers is found alongside a large hot tub area. The outhouse includes two sections, a storage area and a further living space or office space that also has a shower and cloakroom and would be an ideal space for someone who worked from home or needed a studio at home.

There are many stand out features that this home enjoys such as integrated blinds to all windows, underfloor heating throughout the ground floor, smart RGBW lighting downstairs and to both the front and rear exterior, CCTV coverage to both the front and back of the house, Smart home integration for heating, lighting, and CCTV,
six Wi-Fi access points throughout the house and
a fully boarded loft space. As you will experience for yourself on the viewing this home is one of a kind!

Floorplans For Warminster

Calculate Your Stamp Duty

£

Results

Stamp Duty To Pay:

Effective Rate:

Tax Band % Taxable Sum Tax

Book a Viewing

Simply fill out the form below and one of the team will be in touch as soon as possible.

* indicates a required field within the form.

This site is protected by reCAPTCHA and the Google Privacy Policy and Terms of Service apply.

How much is your property worth?

If you want to talk through your selling, buying or renting options, then please get in touch.

Book a Valuation

Selling your
property?

Letting your
property?

Looking for
a property?

Tenant's
information

Land & New Homes Network logo RightMove logo ARLA logo NAEA logo DPS logo
Guild logo Property Ombudsman logo Trading Standards logo iamsold logo OnTheMarket logo