Sorry, there is no video tour available for this property.

5 Bed Detached House For Sale

Westbury

Guide Price £450,000

Bedrooms

5

Bathrooms

3

Receptions

3

Save property

Save property


  • Five bedrooms, two with en-suites
  • Spacious living accommodation over three floors
  • Two reception rooms plus study and conservatory
  • Private, enclosed garden
  • Driveway parking and garage
  • Close to local schools, shops, and transport links
  • Excellent potential to update and personalise

Positioned on the sought-after Leigh Park development, this substantial detached home offers a generous amount of space arranged over three floors, making it ideal for a growing family. While the property would benefit from some updating, it presents a wonderful opportunity to create a stylish, modern home tailored to your own tastes.

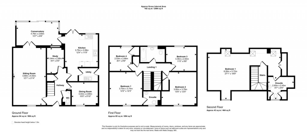
The ground floor is well laid out, featuring a welcoming hallway, two reception rooms, a separate study, and a bright conservatory overlooking the garden. The kitchen includes a useful utility room and there is also a downstairs WC.

On the first floor, you’ll find four bedrooms, including a spacious double with ensuite, plus a family bathroom. The top floor is entirely dedicated to an impressive principal bedroom suite, with a large en-suite bathroom and plenty of storage space.

Outside, the enclosed rear garden offers a safe and private space for children or pets, with side access leading to the driveway, with ample parking and the double garage.

This is a great chance to secure a generously proportioned family home in a prime location

Westbury is a thriving and well-connected market town nestled in the heart of Wiltshire, offering excellent access to Warminster, Salisbury, Frome, and Bath via the A36. The town is home to a selection of well-regarded schools, including Westbury Infants, Westbury Church of England Junior School, and Matravers Secondary School.
Surrounded by beautiful countryside, Westbury is perfect for outdoor enthusiasts, with scenic walks and cycle routes on the doorstep. From panoramic views across the iconic White Horse to peaceful rambles through Clanger Woods, the area offers something for everyone. The renowned Longleat Estate is also just eight miles away.

Westbury benefits from superb rail connections, with direct services to Bath, London Paddington, Cardiff, Portsmouth, and Swindon from the town’s railway station. At the heart of the town lies the historic 14th-century All Saints Church, surrounded by a range of independent shops, cafés, and a weekly farmers' market.

Everyday amenities are well catered for, with Aldi, Tesco Express, Lidl, and Morrisons all within easy reach. For sports and leisure, residents can enjoy the facilities at Leighton Recreation Centre, the local swimming pool, and several well-equipped gyms.

Floorplans For Westbury
EPC For Westbury

Calculate Your Stamp Duty

£

Results

Stamp Duty To Pay:

Effective Rate:

Tax Band % Taxable Sum Tax

Book a Viewing

Simply fill out the form below and one of the team will be in touch as soon as possible.

* indicates a required field within the form.

This site is protected by reCAPTCHA and the Google Privacy Policy and Terms of Service apply.

How much is your property worth?

If you want to talk through your selling, buying or renting options, then please get in touch.

Book a Valuation

Selling your
property?

Letting your
property?

Looking for
a property?

Tenant's
information

Land & New Homes Network logo RightMove logo ARLA logo NAEA logo DPS logo
Guild logo Property Ombudsman logo Trading Standards logo iamsold logo OnTheMarket logo