Sorry, there is no video tour available for this property.

4 Bed Semi Detached Bungalow For Sale

Westbury

Offers Over £325,000

Bedrooms

4

Bathrooms

2

Receptions

2

Save property

Save property


  • FOUR BEDROOMS
  • DESIRABLE LOCATION
  • AMAZING VIEWS
  • GAS CENTRAL HEATING
  • DRIVEWAY PARKING AND GARAGE
  • BEAUTIFUL GARDEN
  • CLOSE TO TOWN CENTRE AND LOCAL AMENITIES
  • NO ONWARD CHAIN

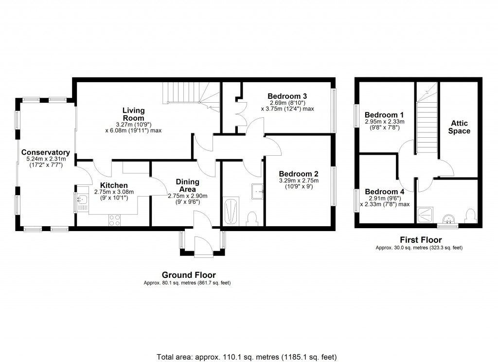
A brilliant four bedroom home offered to market with no onward chain, over 1185 sq ft of living space and far reaching views.

Well located, in the popular Studland Park, this property has a light and airy feeling throughout and offers fluid and flexible accommodation. Upon entering via the hall, you have easy access to the two downstairs bedrooms, modern family bathroom, good sized kitchen, sitting room and dining room and a large conservatory.

As you make your way upstairs the property continues to impress with two further bedrooms and a family bathroom. Both bedrooms enjoy tremendous views across Wiltshire.

The garden to the rear of the property is well maintained and fencing provides a secure setting for pets and children and once again has beautiful views. To the front there is a good-sized lawn that sets the house back from the road and there is a driveway providing ample parking in front of the single garage.

Offered with no onward chain this property is a must view.

Westbury is a vibrant and popular market town located in the heart of Wiltshire which provides excellent access to Warminster, Salisbury, Frome and Bath via the A36. The town is well served with several respected Schools, Westbury Infants, Westbury Church Of England Junior and Matravers Secondary. Residents are able to take full advantage of the gorgeous countryside that surrounds the town, with some beautiful walks and cycle rides nearby not to mention Longleat which is 8 miles distant, so whether it be a stroll to enjoy the vista across the White Horse and beyond or perhaps a ramble in Clanger Woods this has it all. Superb rail links are on hand courtesy or the Railway Station which offers a direct line to Bath, London Paddington, Cardiff, Portsmouth and Swindon. The historic 14th century All Saints Church is located off the main square and you will find a number of independent shops and cafe's to enjoy along with a Farmers Market which meets on a weekly basis. The town has three large supermarkets with Lidl, Aldi and Morrisons to choose from. On the sports and leisure side there is Leighton Recreation Centre a local swimming pool and several gyms.

Floorplans For Westbury
EPC For Westbury

Calculate Your Stamp Duty

£

Results

Stamp Duty To Pay:

Effective Rate:

Tax Band % Taxable Sum Tax

Book a Viewing

Simply fill out the form below and one of the team will be in touch as soon as possible.

* indicates a required field within the form.

This site is protected by reCAPTCHA and the Google Privacy Policy and Terms of Service apply.

How much is your property worth?

If you want to talk through your selling, buying or renting options, then please get in touch.

Book a Valuation

Selling your
property?

Letting your
property?

Looking for
a property?

Tenant's
information

Land & New Homes Network logo RightMove logo ARLA logo NAEA logo DPS logo
Guild logo Property Ombudsman logo Trading Standards logo iamsold logo OnTheMarket logo