Sorry, there is no video tour available for this property.

3 Bed End Terrace House For Sale

Warminster, Crockerton

Offers Over £345,000

Bedrooms

3

Bathrooms

2

Receptions

2

Save property

Save property


  • CHARACTERFUL THREE BEDROOM HOME
  • VIEWS OVER ADJACENT COUNTRYSIDE
  • A SHORT WALK TO CROCKERTON C OF E PRIMARY SCHOOL
  • CLOSE TO SHEARWATER LAKE
  • TUCKED AWAY IN A QUIET NO THROUGH ROAD
  • BENEFITTING FROM A PARCEL OF LAND WITH OUTHOUSE PERFECT AS AN OFFICE OR STUDIO
  • PLENTY OF CHARACTER FEATURES

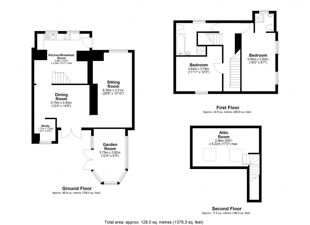
A charming two bedroom end of terrace cottage with an attic room tucked away in a delightful location in the village of Crockerton. Bursting with character and charm this property is a must see.

Overlooking fields and open countryside the property is located a short walk to Crockerton C of E Primary School and Shearwater lake.

With lots of characterful features and spacious rooms the property consists of a kitchen which is done in a farmhouse style with fitted units and plenty of storage. The dining room allows for family dining or entertaining and leads onto the sitting room which spans the length of the home and includes exposed brickwork and leads onto the spacious bright conservatory.

As you make your way up to the first floor the property includes two bedrooms one of which has an ensuite and there is also a family bathroom. There is a further bedroom on the second floor which is a attic conversion.

Externally there is parking to the front of the property for mutiple cars and a lovely rear garden with plenty of space for children to play or for keen gardeners to pkant flowers or grow their own vegetables.

To the front of the proeprty slighty further down the no through road is a gated and walled parcel of land which the proeprty owns and there is a outhouse located. This is perfect for an office or studio or just a place to relax or children to play.

The property benefits from oil central heating. The property also has a septic tank sewage system. There is a right of access to the neighbouring property which runs along the rear of the cottage.

Floorplans For Warminster, Crockerton

Calculate Your Stamp Duty

£

Results

Stamp Duty To Pay:

Effective Rate:

Tax Band % Taxable Sum Tax

Book a Viewing

Simply fill out the form below and one of the team will be in touch as soon as possible.

* indicates a required field within the form.

This site is protected by reCAPTCHA and the Google Privacy Policy and Terms of Service apply.

How much is your property worth?

If you want to talk through your selling, buying or renting options, then please get in touch.

Book a Valuation

Selling your
property?

Letting your
property?

Looking for
a property?

Tenant's
information

Land & New Homes Network logo RightMove logo ARLA logo NAEA logo DPS logo
Guild logo Property Ombudsman logo Trading Standards logo iamsold logo OnTheMarket logo