Sorry, there is no video tour available for this property.

4 Bed Detached House For Sale

Westbury Leigh, Westbury

£595,000

Bedrooms

4

Bathrooms

3

Receptions

2

Save property

Save property


  • ** £30,000 STAMP DUTY CONTRIBUTION**
  • HIGH SPECIFICATION LARGE DETACHED NEW HOME
  • SUPERB LOCATION, CLOSE TO BEAUTIFUL OPEN COUNTRYSIDE AND WITH GOOD ACCESS TO THE TOWN CENTRE AND RAILWAY STATION
  • FOUR DOUBLE BEDROOMS AND TWO EN SUITE
  • IMPRESSIVE PRINCIPAL BEDROOM WITH A DRESSING ROOM
  • STUNNING OPEN PLAN KITCHEN/DINER WITH BI-FOLD DOORS OPENING ONTO THE GARDEN
  • INTEGRATED APPLIANCES, SOLAR PANELS AND ELECTRIC CAR CHARGING POINT
  • STUDY/PLAYROOM - IDEAL IF YOU WORK FROM HOME
  • UTILITY ROOM AND A DOWNSTAIRS CLOAKROOM
  • DOUBLE GARAGE AND DRIVEWAY PARKING

A stunning high specification brand new large detached family home situated in this fabulous location, close to beautiful open countryside, on the outskirts of Westbury.

The development is within walking distance of nearby amenities on Leigh Park and offers good access to the town centre and railway station, ideal if you're looking to commute to Bath, Bristol or London. Built by Waine Homes, who are a highly regarded 5* builder, the development has been thoughtfully designed with a focus on open green space, which enhances and compliments this wonderful location.

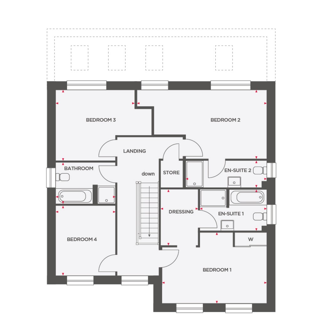
On approaching The Larch, you very quickly begin to realise you're about to experience something very special indeed. There is an inviting entrance hall, good size living room which has a positive light and airy feel and bi fold doors opening directly onto the garden. There is a stunning open plan kitchen/dining/family room, again with a set of bi fold doors helping to bring the outside in. There are three area's to relax and unwind whilst entertaining family and friends making this room the destination, and to avoid any worries when moving in, the home comes complete with an AEG electric oven and hob, integrated washing machine, dishwasher and fridge/freezer. Furthermore, on the ground floor this fine home boasts a utility room, invaluable cloakroom and ground floor study/playroom, ideal if you work from home. Upstairs, there is a particularly impressive principal bedroom with built in wardrobes, dressing room and en suite with a bath and separate shower cubicle, three further double bedrooms, with the guest room featuring an en suite shower room and a luxurious family bathroom.

Externally, the garden to the front will be landscaped with turf and a patio area to the rear. There is a double garage, driveway parking, climate and cost friendly solar panels along with an electric car charging point.

For total piece of mind, Waine homes offer a 2 year defect warranty which is further supported by a 10 year NHBC Warranty, something you certainly don't get the luxury off when buying second hand. With a limited number of the Cherry house type available, and a number reserved, early viewing is essential to avoid any potential disappointment.

At Wain Homes, we don’t believe in hidden extras. What you see is what you get. Our homes at Horizon come with a premium all-inclusive specification, from contemporary flooring and integrated appliances to fitted wardrobes and fully finished kitchens in your choice of style – and so much more. And yes, it’s all included in the price! Get in touch today to find out more.

Nestled in the peaceful countryside village of Westbury Leigh, Wiltshire, Horizon presents a selection of newly built 2, 3, and 4-bedroom family homes. The development is conveniently located with easy access to nearby cities and towns, including Warminster (4 miles), Trowbridge (6.5 miles), Frome (7 miles), and Bath (14 miles).

The homes at Horizon have been designed with modern living in mind and feature an all-inclusive specification, which ensures a hassle-free moving experience. Every property is complete with high-quality flooring, stylish fittings, integrated appliances, and wardrobes to the main bedroom as standard. Your new home will be ready to move into right away, making it easier for you to start creating lasting memories in your new space.

Known for its iconic White Horse, Westbury is the perfect base for both relaxation and exploring the beauty of rural Wiltshire, Bath, and Somerset. The village boasts a diverse selection of cafes, restaurants, supermarkets, and traditional public houses, as well as a range of schools, a community hall, a leisure centre, hardware stores, and a pharmacy.

In addition to its excellent schools, Westbury benefits from superb transport links, with its mainline railway station connecting to London, Wales, and the South West of England. At Horizon, you’ll enjoy more quality time with your family, spending less time in the hustle and bustle of traffic.

AGENTS NOTE: There will be a management charge payable of £328 per annum for the maintenance of the development. Photos depict the smaller show home on the development.

Floorplans For Westbury Leigh, Westbury Floorplans For Westbury Leigh, Westbury

Calculate Your Stamp Duty

£

Results

Stamp Duty To Pay:

Effective Rate:

Tax Band % Taxable Sum Tax

Book a Viewing

Simply fill out the form below and one of the team will be in touch as soon as possible.

* indicates a required field within the form.

This site is protected by reCAPTCHA and the Google Privacy Policy and Terms of Service apply.

How much is your property worth?

If you want to talk through your selling, buying or renting options, then please get in touch.

Book a Valuation

Selling your
property?

Letting your
property?

Looking for
a property?

Tenant's
information

Land & New Homes Network logo RightMove logo ARLA logo NAEA logo DPS logo
Guild logo Property Ombudsman logo Trading Standards logo iamsold logo OnTheMarket logo