Sorry, there is no video tour available for this property.

3 Bed End Terrace House For Sale

Warminster

Guide Price £325,000

Bedrooms

3

Bathrooms

1

Receptions

3

Save property

Save property


  • THREE BEDROOM HOME
  • LARGE PLOT WITH SPACIOUS GARDEN
  • GARAGE WITH MAINS ELECTRICITY AND WATER
  • OUTHOUSE AT THE BOTTOM OF THE GARDEN CURRENTLY USED AS A STUDIO
  • AMPLE LIVING SPACE
  • WOODBURNER LOCATED IN THE FRONT LIVING ROOM
  • CLOSE TO LOCAL AMENITIES AND SCHOOLS
  • LOCATED ON A QUIET CUL DE SAC

This well presented house boasts 3 bedrooms and a range of desirable features including a large garden, off-road parking, and a garage. Ideal for families seeking a charming home in a convenient location.

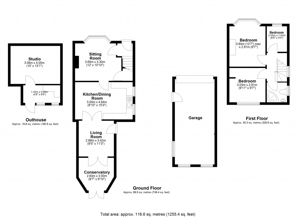
Having three well-appointed bedrooms, this property is ideal for families seeking a spacious home close to town and local amenities. The sitting room is a bright airy space that includes a woodburner and leads onto the large kitchen dining/room. The modern kitchen provides plenty of storage and worktop space and allows for entertaining or family dining together. A seperate smaller living room which is a versatile space and can be used as a seperate dining room, playroom or office is located off the kitchen. A conservatory also adds to the living space of the home and leads onto the patio overlooking the garden.

Upstairs the property continues to impress with three bedrooms including two doubles and a single room and a family bathroom.

Externally the property boasts a large plot with a driveway, garage which is currently used as a kitchen for business purposes but includes electric and mains water. The garden is mostly laid to lawn and ideal for children or pets and there is a outboulding at the end of the garden which is currently used as a studio and is a very versatile and useful space for those that work from home or coul dbe used as a games room or childrens playroom.

The whole property has a warm and welcoming atmosphere throughout.

Please call us now to arrange your viewing!

Floorplans For Warminster

Calculate Your Stamp Duty

£

Results

Stamp Duty To Pay:

Effective Rate:

Tax Band % Taxable Sum Tax

Book a Viewing

Simply fill out the form below and one of the team will be in touch as soon as possible.

* indicates a required field within the form.

This site is protected by reCAPTCHA and the Google Privacy Policy and Terms of Service apply.

How much is your property worth?

If you want to talk through your selling, buying or renting options, then please get in touch.

Book a Valuation

Selling your
property?

Letting your
property?

Looking for
a property?

Tenant's
information

Land & New Homes Network logo RightMove logo ARLA logo NAEA logo DPS logo
Guild logo Property Ombudsman logo Trading Standards logo iamsold logo OnTheMarket logo